Outdated Browser

Some features of this site may not be available with your current browser.
In order to receieve the best experience, please update to a newer browser.

618-277-4400

1,716 SF Office Space Available for Lease

$16.50 Per Sqft

Listing Resources

Listing Description

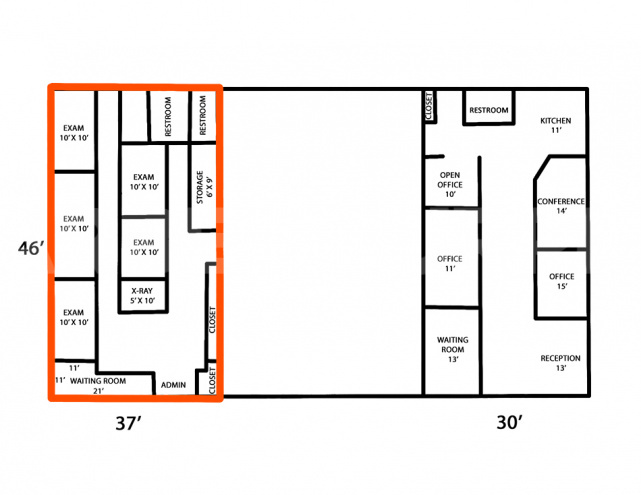
1,716 SF Former Medical Office For Lease
Includes waiting room, 5 exam rooms, X-Ray booth, admin area, and two restroom. Building has 50 parking spaces and Marquee and Building Signage are available.

Located on North Illinois Street (IL Route159), just minutes from I-64 (Exit12).
24,200 ADT on IL Route 159.

Lease Rate: $16.50/SF, Modified Gross

Listing Details

Listing No : 3032
Sale Or Lease : For Lease
Property Type(s) : Office
Building Size (Sqft) : 8,280 Sqft
Total Sqft Available : 1,716 Sqft
Lease Rate : $16.50 Per Sqft
Lease Type : Modified Gross
Building Total Sqft : 8,280 Sqft
Total Sqft Available : 1,716 Sqft
Office : 1,716 Sqft
Parcel No : 03-34.0-102-004
Zoning : Planned Business
Parking : 52
Parking Surface Type : Asphalt
Property Tax : $12,578
Tax Year : 2023
Traffic Count : 24,200
Year Built : 2005
Class : B
Clearance Min : 8 ft
Clearance Max : 9 ft
Roof : Shingle
Acres : 0.59 Acre(s)
Frontage : 200 ft
Depth : 115 ft
Water Provider : Caseyville Township
Water Provider Location : On Site
Sewer Provider : Caseyville Township
Sewer Provider Location : On Site
Gas Provider : Ameren
Gas Provider Location : On SIte
Electric Provider : Ameren
Electric Provider Location : On Site
Phase : 1
Interstate : I-64
Airport : No

Contact Agent

Commercial Real Estate Solutions

Not finding what you’re looking for?

Call Us

618-277-4400

Favorites

Notify a Broker

Notify a BarberMurphy agent that you're interested.

Share Your Favorites

Send an email with a link to your favorite listings.

reCAPTCHA