Outdated Browser

Some features of this site may not be available with your current browser.
In order to receieve the best experience, please update to a newer browser.

618-277-4400

2,706 SF Former Medical Office

$325,000

Listing Resources

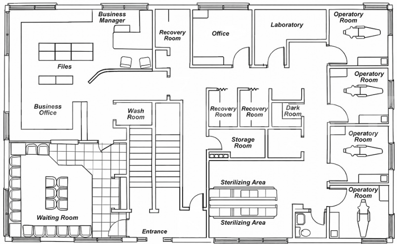
Listing Description

2,706 SF well-maintained former oral and maxillofacial surgeon’s office available for sale. Main level features 4 exam rooms with sinks, 3 recovery rooms, 1 CBCT scanner, 2 laboratories (1 pharmacy), private office, 2 restrooms, large waiting room and large administrative area, and filing room. Lower level (2,706 SF) is fully built out with 5 private offices (1 could potentially be a conference room), 2 smaller offices/dictation rooms, 2 restrooms, 1 shower, and an employee lounge connected to a conference room. (4) HVAC units: 2015, 2012, 2009 and 2006. Water heater: 2019. Excellent location and set up for any type of medical use, including dentists. Building could be easily converted for professional services on both floors. Lookout windows on lower level.

Office is located in the well established Copper Bend Centre office park just off Frank Scott Parkway. This former medical office is less than 1 mile from IL Route 15 and surrounded by many area amenities.

Sale Price: $325,000

Listing Details

Listing No : 3223
Sale Or Lease : For Sale
Property Type(s) : Office
Building Size (Sqft) : 2,706 Sqft
Sale Price : $325,000
Sale Price Per Sqft : $120.10
Building Total Sqft : 2,706 Sqft
Office : 2,706 Sqft
Min Divisible Sqft : 2,706 Sqft
Max Contiguous Sqft : 2,706 Sqft
Parcel No : 08-18.0-101-038; 08-18.0-101-041
Zoning : PUD
Complex : Copper Bend Centre
Parking : 18
Parking Surface Type : Asphalt
Tax Year : 2024
Traffic Count : 13,000
Year Built : 1988
Rehab Year : 2020
Clearance Min : 8 ft
Clearance Max : 9 ft
Exterior : Brick
Floors : 2
Acres : 0.08 Acre(s)
Frontage : 71 ft
Depth : 46 ft

Contact Agent

Commercial Real Estate Solutions

Not finding what you’re looking for?

Call Us

618-277-4400

Favorites

Notify a Broker

Notify a BarberMurphy agent that you're interested.

Share Your Favorites

Send an email with a link to your favorite listings.

reCAPTCHA