Outdated Browser

Some features of this site may not be available with your current browser.
In order to receieve the best experience, please update to a newer browser.

618-277-4400

2,030 SF Former Medical Office

$149,000

Listing Resources

Listing Description

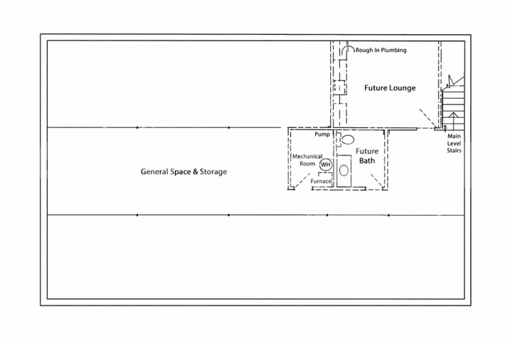
2,030 SF medical office features 5 exam rooms (no water), 1 laboratory, staff break room, 2 restrooms (1 ADA), oversized waiting room, filing room with storage, administration area and 1 private physician office. Full, unfinished basement (2,030 SF). A few of the exam tables will remain on site along with waiting room chairs. Excellent curbside parking with quick access within Copper Bend. Additional employee parking in southeast corner of the complex.

Office is located in the well established Copper Bend Centre office park just off Frank Scott Parkway. The former pediatrician office is less than 1 mile from IL Route 15 and surrounded by many area amenities.

Sale Price: $149,000

Listing Details

Listing No : 2304
Sale Or Lease : For Sale
Property Type(s) : Office - General Office, Office - Medical
Building Size (Sqft) : 2,030 Sqft
Lot Size (Acres) : 0.05 Acre(s)
Sale Price : $149,000
Sale Price Per Sqft : $73.84
Building Total Sqft : 2,030 Sqft
Office : 2,030 Sqft
Min Divisible Sqft : 2,030 Sqft
Max Contiguous Sqft : 2,030 Sqft
Parcel No : 08-18.0-101-047
Zoning : PUD
Complex : Copper Bend
Prior Use : Medical Office
Parking : 16
Parking Surface Type : Asphalt
Tax Year : 2024
Traffic Count : 13,000
Year Built : 1984
Rehab Year : 2019
Floors : 1
Acres : 0.05 Acre(s)
Frontage : 57.42 ft
Depth : 40 ft

Contact Agent

Commercial Real Estate Solutions

Not finding what you’re looking for?

Call Us

618-277-4400

Favorites

Notify a Broker

Notify a BarberMurphy agent that you're interested.

Share Your Favorites

Send an email with a link to your favorite listings.

reCAPTCHA