Outdated Browser

Some features of this site may not be available with your current browser.
In order to receieve the best experience, please update to a newer browser.

618-277-4400

1,680 SF Office Building

$2,000.00 Per Month

Listing Resources

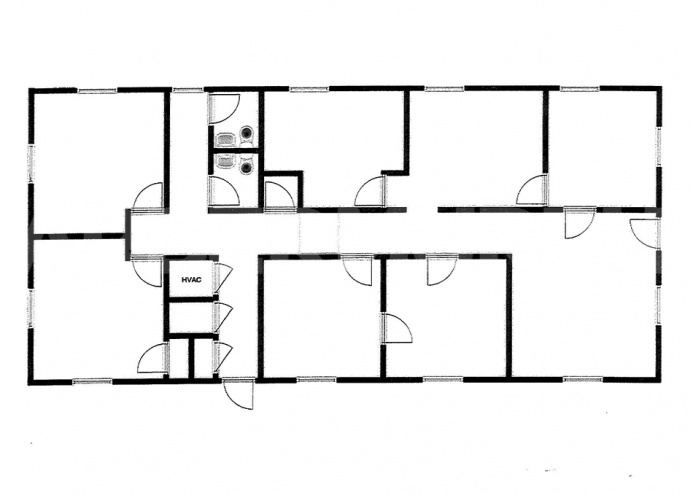
Listing Description

1,680 SF former attorney’s office for sale and lease. It has a reception area, six offices, a conference room (or a 7th Office), and a break area in the basement with storage. Asphalt parking lot with 10 spaces. Recent interior updates.

Located in a high-traffic area on Lincoln Trail in Fairview Heights. This is a heavy retail/office location.

Reduced Lease Rate: $2,000/Month, Gross

Reduced Sale Price: $139,900

Listing Details

Listing No : 3080
Sale Or Lease : For Lease
Property Type(s) : Office, Office - General Office
Building Size (Sqft) : 1,680 Sqft
Lot Size (Acres) : 0.23 Acre(s)
Total Sqft Available : 1,680 Sqft
Lease Rate : $2,000.00 Per Month
Lease Type : Gross
Building Total Sqft : 1,680 Sqft
Direct Lease : 1,680 Sqft
Office : 1,680 Sqft
Min Divisible Sqft : 1,680 Sqft
Max Contiguous Sqft : 1,680 Sqft
Parcel No : 03-28.0-300-007
Zoning : B-3
Zoning By : Fairview Heights
Prior Use : Law Office
Parking : 10
Parking Surface Type : Asphalt
Property Tax : $5,070
Tax Year : 2023
Traffic Count : 14,800
Year Built : 1940
Clearance Min : 8 ft
Clearance Max : 8 ft
Exterior : Brick
Floors : 2
Acres : 0.23 Acre(s)
Frontage : 50 ft
Depth : 210 ft
Interstate : I-64

Contact Agent

Commercial Real Estate Solutions

Not finding what you’re looking for?

Call Us

618-277-4400

Favorites

Notify a Broker

Notify a BarberMurphy agent that you're interested.

Share Your Favorites

Send an email with a link to your favorite listings.

reCAPTCHA