Outdated Browser

Some features of this site may not be available with your current browser.
In order to receieve the best experience, please update to a newer browser.

618-277-4400

Former Café/Bar - Downtown Alton

$25.00 Per Sqft

Listing Resources

Listing Description

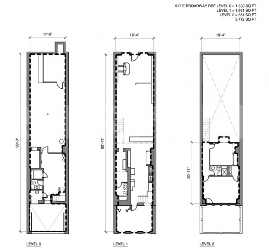
2,222 SF former bar/café available for lease. Main level has an open concept with two built in counter spaces. Well laid out kitchen with an oversized refrigerator, three separate sinks (including a three bin sink) with grease trap. Manager’s office in back. Second floor has a single office, 3/4 bathroom with shower and private event room that opens to a walk out patio overlooking Rte 67 and the Mississippi River. Lower level is accessible via internal stairs and double garage door. Total of 3 restrooms, one on each level. Parking available on E. Broadway and designated lots.
Tenant Improvements negotiable.

Located in downtown Alton, across from the newly renovated Wedge Innovation Center, adjacent to the Lucas Row retail development, and two blocks North of Riverfront Park and Alton Amphitheater. Multiple restaurants and amenities within walking distance. Alton is 20 miles from downtown St. Louis, MO and 14 miles from downtown Edwardsville.

Lease Rate: $25.00/SF, NNN

Listing Details

Listing No : 3244
Sale Or Lease : For Lease
Property Type(s) : Office, Retail - Store Front Retail
Building Size (Sqft) : 2,222 Sqft
Lot Size (Acres) : 0.05 Acre(s)
Total Sqft Available : 2,222 Sqft
Lease Rate : $25.00 Per Sqft
Lease Type : NNN
Net Charges : $4.00
Building Total Sqft : 2,222 Sqft
Total Sqft Available : 2,222 Sqft
Min Divisible Sqft : 2,222 Sqft
Max Contiguous Sqft : 2,222 Sqft
Parcel No : 23-2-07-14-08-204-022
Zoning : C-4 Downtown Commercial
Prior Use : Brew Haus
Parking : 30
Parking Surface Type : Asphalt
Tax Year : 2024
Traffic Count : 20,000
Year Built : 1961
Rehab Year : 2022
Clearance Min : 8 ft
Clearance Max : 14 ft
Exterior : Concrete, Masonry
Acres : 0.05 Acre(s)
Frontage : 22 ft
Depth : 98 ft

Contact Agent

Commercial Real Estate Solutions

Not finding what you’re looking for?

Call Us

618-277-4400

Favorites

Notify a Broker

Notify a BarberMurphy agent that you're interested.

Share Your Favorites

Send an email with a link to your favorite listings.

reCAPTCHA