Outdated Browser

Some features of this site may not be available with your current browser.
In order to receieve the best experience, please update to a newer browser.

618-277-4400

Owner/User Office Investment

$525,000

Listing Resources

Listing Description

Value-add owner/user office investment for sale. Rents from lower level would supplement monthly debt service. Contact broker for details

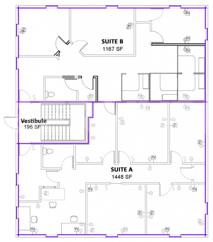
Main level (2,615 SF) office suite available for lease. Offices can be demised to 1,167 SF or 1,448 SF.
Suite A features 4 large office spaces, administration/check in, waiting room, ADA restroom, and shared kitchenette.
Suite B features 3 offices, open cubicle space, ADA restroom, and shared kitchenette.

With strong regional connectivity and a highly accessible St. Clair County location, this property is well suited for a wide range of office and professional users.

Ideally situated in the established Emerald Terrace Professional Park, 12 Emerald Terrace offers a premier Swansea location with immediate access to IL-159, I-64, I-255, IL-161, and IL-15. The property is centrally positioned near the thriving retail, medical, and business centers of Belleville, Fairview Heights, and O’Fallon, providing exceptional convenience for clients, employees, and ownership alike.

Sale Price: $525,000

Lease Rate: $13.75/SF, NNN

Listing Details

Listing No : 3208
Sale Or Lease : For Sale
Property Type(s) : Office
Building Size (Sqft) : 5,900 Sqft
Sale Price : $525,000
Sale Price Per Sqft : $88.98
CAP Rate : 6.97%
NOI : $36,598
Building Total Sqft : 5,900 Sqft
Parcel No : 08-09.0-410-015
Zoning : Planned Business
Tax Year : 2024
Traffic Count : 16,500
Year Built : 1998
Rehab Year : 2005
Class : B
Clearance Min : 8 ft
Clearance Max : 9 ft
Exterior : Brick
Floors : 2
Acres : 0.15 Acre(s)
Frontage : 70 ft
Depth : 70 ft

Contact Agent

Commercial Real Estate Solutions

Not finding what you’re looking for?

Call Us

618-277-4400

Favorites

Notify a Broker

Notify a BarberMurphy agent that you're interested.

Share Your Favorites

Send an email with a link to your favorite listings.

reCAPTCHA