Outdated Browser

Some features of this site may not be available with your current browser.
In order to receieve the best experience, please update to a newer browser.

618-277-4400

Pad-Ready Industrial Lots

$125,000/Acre

Listing Resources

Listing Description

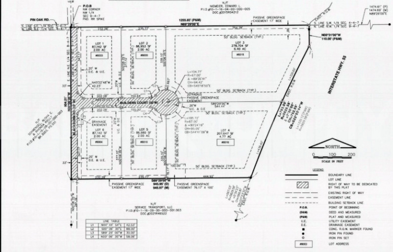
Newly-developed Industrial park. Only utility-served, pad-ready sites on the North end of Edwardsville. Located in the path of progress as development continues to move East of town. Adjacent to Park North mixed use development. Great access and visibility via I-55. Lots range from 2 acres to 6.4 acres. Can combine or demise as needed. Ownership is capable of performing a build-to-suit if needed. Contact broker for more information.

8003 Builders Court is located in an established industrial corridor in Edwardsville, Illinois, offering an ideal setting for manufacturing, warehouse, distribution, or contractor uses. The site benefits from proximity to major interstate access, providing efficient connectivity to the St. Louis metro area and regional Midwest markets. With increasing commercial and residential development on the East end of Edwardsville, the property offers strong infrastructure, a reliable labor base, and a business-friendly environment.

Sale Price: $125,000/Acre

Listing Details

Listing No : 3202
Sale Or Lease : For Sale
Property Type(s) : Land
Lot Size (Acres) : 14.40 Acre(s)
Min Acres Available : 2 Acre(s)
Max Acres Available : 10.40 Acre(s)
Sale Price : $125,000/Acre
Sale Price Per Sqft : $2.87
Parcel No : 10-2-16-09-00-000-021 thru -0.26
Zoning : Industrial
Enterprise Zone : Yes
Traffic Count : 30,100
Topography : Flat
DivisibleYes
Total Acres Available : 14.40 Acre(s)
Min Divisible Acres : 2 Acre(s)
Water Provider : City
Water Provider Location : On Site
Sewer Provider : City
Sewer Provider Location : On Site
Gas Provider : Ameren
Gas Provider Location : On Site
Electric Provider : Ameren
Electric Provider Location : On Site
Interstate : I-55

Contact Agent

Commercial Real Estate Solutions

Not finding what you’re looking for?

Call Us

618-277-4400

Favorites

Notify a Broker

Notify a BarberMurphy agent that you're interested.

Share Your Favorites

Send an email with a link to your favorite listings.

reCAPTCHA