Outdated Browser

Some features of this site may not be available with your current browser.
In order to receieve the best experience, please update to a newer browser.

618-277-4400

53 +/- Acres of I-44 Frontage With a 32,750 SF Warehouse

$1,500,000

Listing Resources

Listing Description

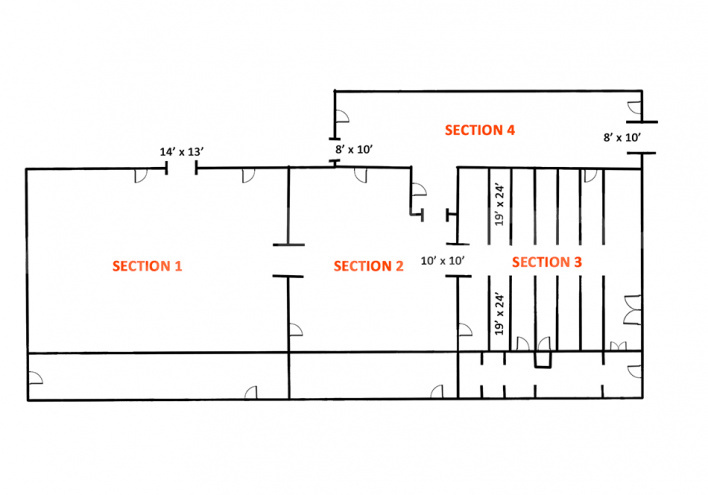
There are 30 +/- acres of usable land that is ideal for future interstate related businesses, heavy commercial or industrial type operations. Excess land available for development for outdoor storage, laydown yard or truck parking. The property has 3 existing billboards that could be utilized for income purposes. The 32,750 SF building could be subdivided into 4 sections and leased out to multiple tenants or be converted to self storage units. The site currently has two (2) tenants on month to month leases taking up about 40% of the building.

Property located in Conway, MO 1 mile from Exit 113 Interstate-44 just 15 miles from Lebanon, MO and 30 from Springfield, MO. Conway’s strategic value is the strong east-west visibility with quick Interstate connectivity. Land values are going to be cheaper offering less congestion than larger markets and flexible governmental approval processes. Located along the Route 66 historic corridor and adjacent to to Interstate 44 with 20,000 vehicles per day passing by.

Sale Price: $1,500,000

Lease Rate: $4.00/SF, NNN

Listing Details

Listing No : 3175
Sale Or Lease : For Sale
Property Type(s) : Industrial
Building Size (Sqft) : 32,750 Sqft
Lot Size (Acres) : 52.91 Acre(s)
Sale Price : $1,500,000
Sale Price Per Sqft : $45.80
Building Total Sqft : 32,750 Sqft
Office : 4,000 Sqft
Warehouse : 28,750 Sqft
Max Contiguous Sqft : 32,750 Sqft
Drive-In Doors : 3
Drive-In Door Size : (2) 8'x10" (1) 14'x13'
Sprinklers : None
Lighting : Fluorescent
Men's Restroom : Yes
Women's Restroom : Yes
Shower : Yes
Ventilation : Yes
Parcel No : 26-3.0-06-000-000-010.000
Zoning : Industrial
Parking Surface Type : Rock
Tax Year : 2025
Traffic Count : 20,000
Year Built : 1987
Rehab Year : 2025
Clearance Min : 10 ft
Clearance Max : 24 ft
Bay Spacing : Clear Span
Roof : Metal
Exterior : Metal
Floors : 1
Floor Type : Concrete
Floor Thickness : 6"
Acres : 52.91 Acre(s)
Frontage : 1,955 ft
Depth : 1,730 ft
Water Provider : Well Water
Water Provider Location : On Site
Sewer Provider : Lagoon
Sewer Provider Location : Lagoon
Gas Provider : Brooks Gas Co (Propane)
Gas Provider Location : Propane
Electric Provider : Laclede Electric Cooperative
Electric Provider Location : On Site
AMPS : 400
Phase : 1
Low Volts : 120
High Volts : 240
Interstate : I-44, 1 mile
Airport : Springfield-Branson National Airport- 45 Miles

Contact Agent

Commercial Real Estate Solutions

Not finding what you’re looking for?

Call Us

618-277-4400

Favorites

Notify a Broker

Notify a BarberMurphy agent that you're interested.

Share Your Favorites

Send an email with a link to your favorite listings.

reCAPTCHA