Outdated Browser

Some features of this site may not be available with your current browser.
In order to receieve the best experience, please update to a newer browser.

618-277-4400

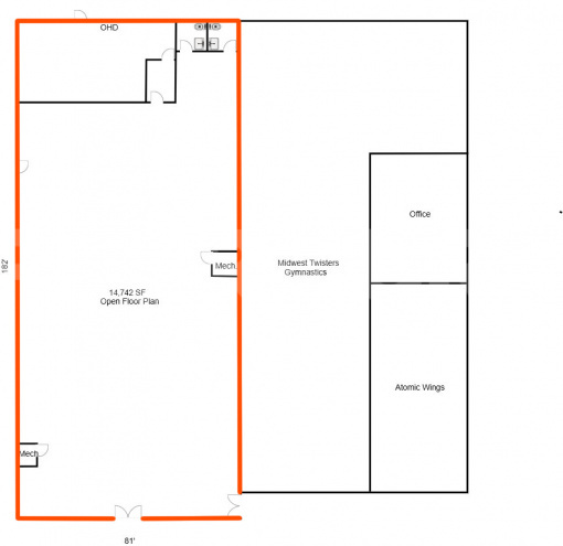
14,742 SF Retail/Showroom for Lease

$12.00 Per Sqft

Listing Resources

Listing Description

14,742 SF former Bed Room Store location available in heavy retail corridor. Open floor plan with 1,700 SF warehouse, 10′ overhead door, private office and two restrooms. 11′ to drop ceiling and 18′ clear height.

Property fronts North Illinois (IL Route 159). Situated in a high traffic/high visibility location with 26,000+ ADT and less than a mile from Interstate 64.

Lease Rate:$12.00/SF, NNN

NNN Expenses: $2.50

Listing Details

Listing No : 1002
Sale Or Lease : For Lease
Property Type(s) : Retail
Building Size (Sqft) : 29,190 Sqft
Lot Size (Acres) : 187 Acre(s)
Total Sqft Available : 14,742 Sqft
Lease Rate : $12.00 Per Sqft
Lease Type : NNN
Net Charges : 2.50
Building Total Sqft : 29,190 Sqft
Total Sqft Available : 14,742 Sqft
Office : 140 Sqft
Retail : 14,742 Sqft
Warehouse : 1,700 Sqft
Min Divisible Sqft : 14,742 Sqft
Max Contiguous Sqft : 14,742 Sqft
Parcel No : 03-27.0-300-041
Zoning : B-3
Zoning By : Fairview Heights
Parking : 55
Parking Surface Type : Asphalt/Concrete
Traffic Count : 26,598
Year Built : 1973
Rehab Year : 2015
Clearance Min : 11 ft
Clearance Max : 18 ft
Acres : 1.88 Acre(s)
Frontage : 200 ft
Depth : 405 ft
Water Provider : City of O'Fallon
Water Provider Location : On Site
Sewer Provider : Caseyville Township
Sewer Provider Location : On Site
Gas Provider : Ameren IL
Gas Provider Location : On Site
Electric Provider : Ameren IL
Electric Provider Location : On Site

Contact Agent

Commercial Real Estate Solutions

Not finding what you’re looking for?

Call Us

618-277-4400

Favorites

Notify a Broker

Notify a BarberMurphy agent that you're interested.

Share Your Favorites

Send an email with a link to your favorite listings.

reCAPTCHA