Outdated Browser

Some features of this site may not be available with your current browser.
In order to receieve the best experience, please update to a newer browser.

618-277-4400

Professional Office Suite & Warehouse

$6.00/SF-$10.95/SF

Listing Resources

Listing Description

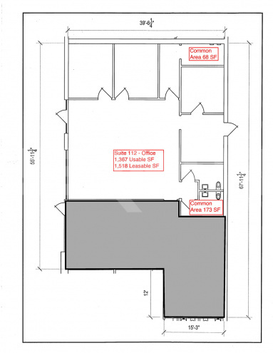
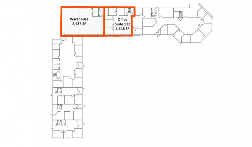
3,995 SF Office/warehouse space available for lease. Office is 1,518 SF has 3 private offices, open bullpen, breakroom and shared restrooms. 2,437 SF warehouse (heat only) with an 8 x 8 OHD (truck height) and a 10 x 10 drive-in door. 12′ clear height. The warehouse office has a through-the-wall heater/AC. All internal walls can be removed. As-Is pricing. TI negotiable. Professional on-site management.

Highly visible business park located right of of Highway 40 near the entrance of Highland.

Lease Rate: $6.00/SF – $10.95/SF, NNN

Listing Details

Listing No : 2881
Sale Or Lease : For Lease
Property Type(s) : Office
Building Size (Sqft) : 16,299 Sqft
Total Sqft Available : 3,955 Sqft
Lease Rate : $6.00/SF-$10.95/SF
Lease Type : NNN
Net Charges : 5.20
Building Total Sqft : 16,199 Sqft
Total Sqft Available : 3,955 Sqft
Office : 1,518 Sqft
Warehouse : 2,437 Sqft
Min Divisible Sqft : 1,518 Sqft
Max Contiguous Sqft : 3,995 Sqft
Drive-In Doors : 2
Drive-In Door Size : 8'x8' and 10'x10'
Parcel No : 02-2-18-32-00-000-032
Zoning : I
Complex : Highland Business Park
Parking : 94
Parking Surface Type : Asphalt
Property Tax : $31,030
Tax Year : 2023
Traffic Count : 4,500
Year Built : 1990
Class : B
Clearance Min : 10 ft
Clearance Max : 12 ft
Exterior : Brick
Floors : 1
Acres : 2.27 Acre(s)
Frontage : 245 ft
Depth : 309 ft

Contact Agent

Commercial Real Estate Solutions

Not finding what you’re looking for?

Call Us

618-277-4400

Favorites

Notify a Broker

Notify a BarberMurphy agent that you're interested.

Share Your Favorites

Send an email with a link to your favorite listings.

reCAPTCHA