Outdated Browser

Some features of this site may not be available with your current browser.
In order to receieve the best experience, please update to a newer browser.

618-277-4400

1 Acre Investment Property with Pre-Approved Commercial Building Plans

$499,000

Listing Resources

Listing Description

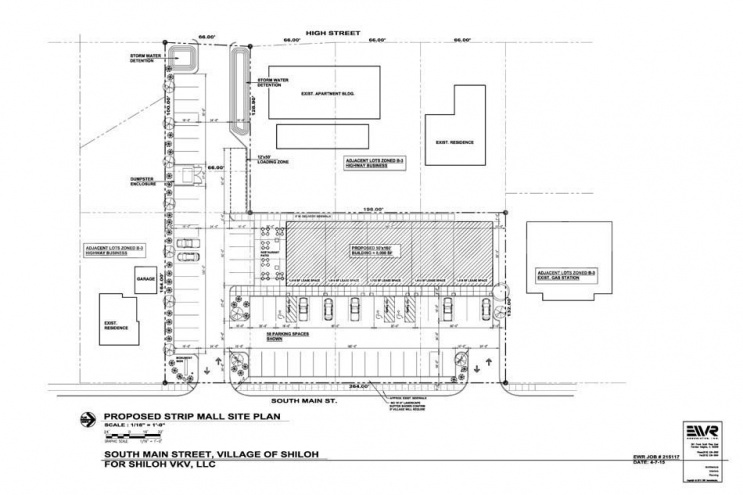
Exceptional commercial development opportunity at 121 South Main Street in Shiloh, Illinois, offering a fully improved one-acre site in one of the Metro East’s fastest-growing commercial corridors. Comprised of two parcels and zoned Highway Business, the property features pre-approved strip center plans by the Village of Shiloh, significantly reducing entitlement timelines and accelerating development potential. All major utilities are available on site, and the flat topography supports efficient construction for retail, medical, office, restaurant, or service-oriented development. Ownership will also consider a build-to-suit opportunity.

Strategically positioned near the signalized intersection of Cross Street and Main Street, the site benefits from strong visibility and approximately 10,100 vehicles per day along Main Street. The location places users within minutes of Memorial Hospital, Siteman Cancer Center, Scott Air Force Base, and the surrounding Shiloh retail districts, providing built-in daytime population and continued area growth.

Reduced Sale Price: $499,000

Listing Details

Listing No : 2177
Sale Or Lease : For Sale
Property Type(s) : Land, Land - Commercial, Land - Mixed Use
Lot Size (Acres) : 1 Acre(s)
Sale Price : $499,000
Sale Price Per Sqft : $11.46
Parcel No : 09-05.0-403-018/021
Zoning : Highway Business
Zoning By : Village of Shiloh
Property Tax : $2,168
Tax Year : 2024
Traffic Count : 10,100
Acres : 1 Acre(s)
Frontage : 264 ft
Depth : 147 ft
Water Provider : IL American
Water Provider Location : On Site
Sewer Provider : O'Fallon
Sewer Provider Location : On Site
Gas Provider : Ameren
Gas Provider Location : On Site
Electric Provider : Ameren
Electric Provider Location : On Site
Interstate : I-64
Airport : St. Louis MidAmerica

Contact Agent

Commercial Real Estate Solutions

Not finding what you’re looking for?

Call Us

618-277-4400

Favorites

Notify a Broker

Notify a BarberMurphy agent that you're interested.

Share Your Favorites

Send an email with a link to your favorite listings.

reCAPTCHA