Outdated Browser

Some features of this site may not be available with your current browser.
In order to receieve the best experience, please update to a newer browser.

618-277-4400

50,400-193,650 SF Manufacturing Warehouse Space

$4.00 Per Sqft

Listing Resources

Listing Description

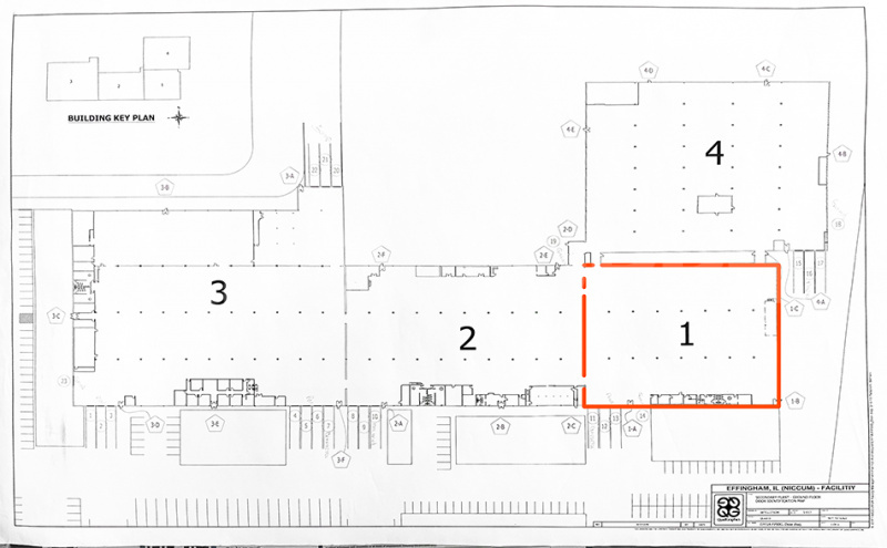
Former Quad Graphics printing plant closed in 2023. Facility is subdivided into 4 sections that have utilities separately metered and each section has specific access points. Heavy power is located in each section. There are roughly 9 acres of farm ground adjacent to the property that can be developed for additional needs. Property is located to the Effingham Railroad with connections to the CN and CSX. A rail spur could be added that connects to the Effingham Railroad. Please contact broker for pricing.

Section 2: 50,400 SF – 42,789 SF warehouse space and 7,611 SF office space. Section 2 contsists of: (3) 8’x8′ dock doors, 20′-28′ clear height, 25’x50′ bay spacing, LED lighting and restrooms. 3 phase/480V/1,500 KVA electric service.

Section 3: 80,000 SF – 77,741 SF warehosue space and 5,656 office space. Section 3 consists of: (6) 8’x10′ dock doors, (4) 8’x8′ dock doors, (1)12’x12′ drive-in door, 20′-28′ clear height, 25’x50′ bay spacing, and wet pipe sprinkler system. Partial warehouse is climate controlled. 3 phase/480V/1,500 KVA electric service.

Section 4: 59,853 SF – 59,453 SF warehouse space and 400 SF office space. Section 4 consits of: (3) 9’x10′ Dock Doors, (1) 14’x16′ drive-in door, 20′-30′ clear height, 25’x60′ bay spacing, wet pipe spinklers and LED lighting. 3 phase/480V/2,000 KVA electric service.

Section 1 – Leased through 10/1/26: 40,320 SF with (1)12’x14′ Drive-In Door, (3) 9’x10′ dock doors with levelers, 20′-28′ clear height, 25’x50′ bay spacing and office space on the first and second floor. 3 phase, 480V, 13,000 AMP, 2,000 KVA electric service.

Located within Effingham’s industrial park with quick access to (2) interstates (I-70 and I-57). Adjacent to Effingham Railroad, a shortline operator of 8 track miles, with connections to Canadian National and CSXT.

Lease Rate: $4.00/SF, NNN

Listing Details

Listing No : 3138
Sale Or Lease : For Lease
Property Type(s) : Industrial
Building Size (Sqft) : 233,970 Sqft
Lot Size (Acres) : 23.20 Acre(s)
Total Sqft Available : 193,650 Sqft
Lease Rate : $4.00 Per Sqft
Lease Type : NNN
Building Total Sqft : 233,970 Sqft
Total Sqft Available : 193,650 Sqft
Office : 13,667 Sqft
Warehouse : 179,983 Sqft
Truck Dock : 19
Truck Dock Size : (6) 9'x10', (7) 8'x8', (6) 8'x10'
Drive-In Doors : 3
Drive-In Door Size : (1) 14'x16', (1) 12'x14', (1 ) 12'x12'
Heating : Warehouse
Cooling : Partial Warehouse/Office
Insulated : Yes
Sprinklers : Wet Pipe System
Lighting : Fluorescent, LED
Men's Restroom : Yes
Women's Restroom : Yes
Ventilation : Yes
Compressed Air : Yes
Parcel No : 03-11-032-051
Zoning : Industrial
Enterprise Zone : Yes
Parking : 56
Property Tax : $57,230
Tax Year : 2023
Year Built : 1977
Rehab Year : 2000
Clearance Min : 21 ft
Clearance Max : 30 ft
Bay Spacing : 25'x60' & 25'x50'
Roof : Metal & TPO
Sprinklers : Yes
Floor Type : Reinforced Concrete
Floor Thickness : 6"
Acres : 23.20 Acre(s)
Frontage : 1,080 ft
Depth : 906 ft
Water Provider : City of Effingham
Sewer Provider : City of Effingham
Gas Provider : Ameren Illinois
Electric Provider : Ameren Illinois
AMPS : 7,000 KVA
Phase : 3 Phase
Low Volts : 270
High Volts : 480
Interstate : Close proximity to I-70 & I-57
Rail : Effingham Rail Road
Airport : 3 Miles to Effingham County Regional Airport

Contact Agent

Commercial Real Estate Solutions

Not finding what you’re looking for?

Call Us

618-277-4400

Favorites

Notify a Broker

Notify a BarberMurphy agent that you're interested.

Share Your Favorites

Send an email with a link to your favorite listings.

reCAPTCHA