Outdated Browser

Some features of this site may not be available with your current browser.
In order to receieve the best experience, please update to a newer browser.

618-277-4400

9,024 SF Retail Space for Sale

$500,000

Listing Resources

Listing Description

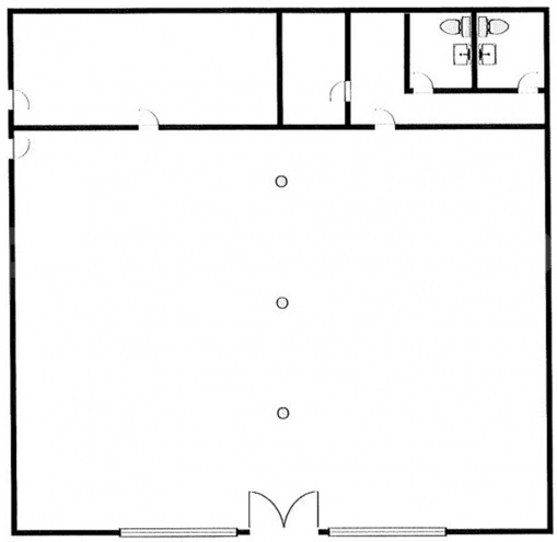
For Sale or Lease, 9,024 SF retail building. Built in 2009. Open floor plan with storage/receiving area, 2 restrooms, private office and mechanical room. Heavy electric, 400 amp, 208/120 Volt, 3-Phase. Pylon Signage with frontage on Lincoln Highway.

East/West Thoroughfare of Fairview Heights. 1.5 miles from St. Clair Square Mall and Interstate 64, big box retail, QSR’s and office properties.

Sale Price: $500.000

Listing Details

Listing No : 3131
Sale Or Lease : For Sale
Property Type(s) : Retail - Freestanding
Building Size (Sqft) : 9,024 Sqft
Lot Size (Acres) : 0.63 Acre(s)
Total Sqft Available : 9,024 Sqft
Sale Price : $500,000
Sale Price Per Sqft : $55.41
Building Total Sqft : 9,024 Sqft
Total Sqft Available : 9,024 Sqft
Min Divisible Sqft : 9,024 Sqft
Max Contiguous Sqft : 9,024 Sqft
Parcel No : 03-29.0-200-015
Zoning : B-3
Prior Use : Retail
TIF : Yes
Enterprise Zone : Yes
Parking : 25
Parking Surface Type : Asphalt
Tax Year : 2024
Traffic Count : 14,500
Year Built : 2009
Clearance Min : 14 ft
Clearance Max : 14 ft
Roof : Flat - 2009
Exterior : Concrete, Block
Floors : 1
Acres : 0.63 Acre(s)
Frontage : 150 ft
Depth : 181 ft
Water Provider : City of O'Fallon
Water Provider Location : On Site
Sewer Provider : Caseyville Township
Sewer Provider Location : On Site
Gas Provider : Ameren
Gas Provider Location : On Site
Electric Provider : Ameren
Electric Provider Location : On Site
Interstate : 1.5 Miles to Interstate 64

Contact Agent

Commercial Real Estate Solutions

Not finding what you’re looking for?

Call Us

618-277-4400

Favorites

Notify a Broker

Notify a BarberMurphy agent that you're interested.

Share Your Favorites

Send an email with a link to your favorite listings.

reCAPTCHA